422 Frederick Avenue, Standard, Alberta

$30,500

Previous Next

0.22

Acres

About 422 Frederick Avenue

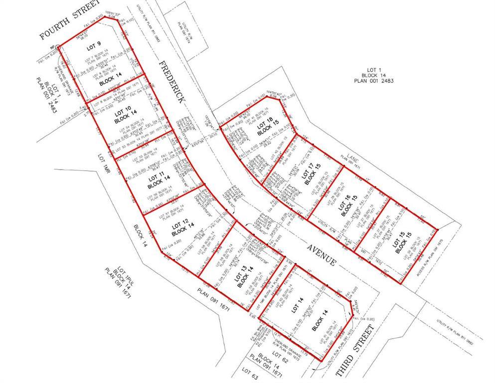
*** 7 LOTS FOR SALE - AMAZING DEVELOPMENT OPPORTUNITY ***Prime investment property for future development in the Village of Standard. All utilities (sewer, water, electric, gas) are to each lot. Paved sidewalks and street lights already installed in the subdivision. Close to K-12 school, local shopping and only 25 minutes from Strathmore with all it's amenities. *** Building Restrictions: Commence building prices within the first year, lock-up stage within the following year and 3 years to complete to build ***

Features of 422 Frederick Avenue

MLS® # A2183313
Price $30,500
Sold Price $30,500
Bathrooms 0.00
Acres 0.22
Type Land
Sub-Type Residential Land
Status Sold

Community Information

Address 422 Frederick Avenue
Subdivision NONE
City Standard
County Wheatland County
Province Alberta
Postal Code T0J 3G0

Amenities

Is Waterfront No

Interior

Fireplace No
Has Basement No

Additional Information

Date Listed December 12th, 2024
Date Sold February 14th, 2025
Days on Market 64
Zoning R-1
Foreclosure No
Short Sale No
RE / Bank Owned No
HOA Fees 0.00

Listing Details

OfficeRE/MAX Real Estate (Central)

Listing Map

Request a Showing

Provide a valid email address.
When would you like to view this property?